Haus Typ Bungalow 101

Von MFH  Massiv Fertighaus in Niederösterreich

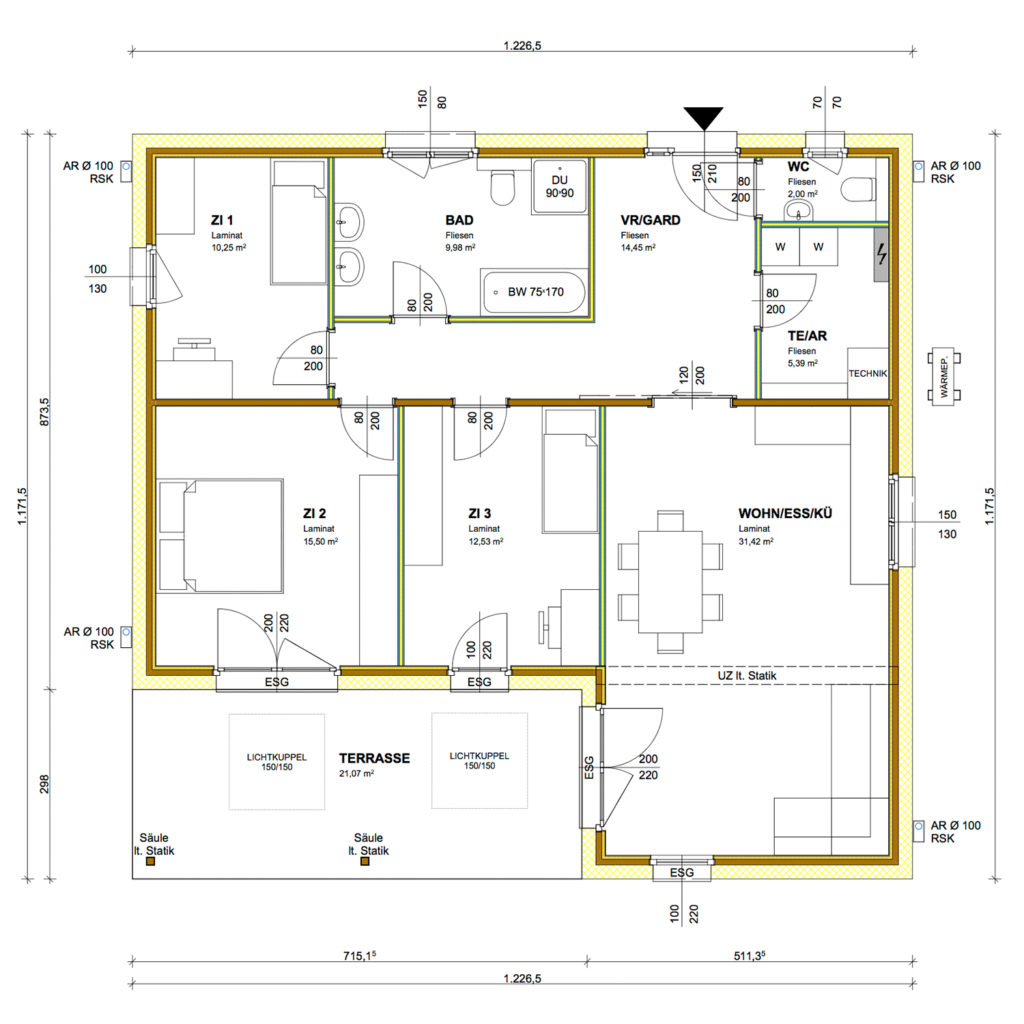
Unser Bungalow 101 eignet sich besonders für Pärchen und Kleinfamilien. Mit Pult-, Flach- oder Walmdach erhältlich, verfügt er über eine Wohnnutzfläche von 101 m² und erzielt durch die überdurchschnittlich gute Isolation der Wände, Fenster und des Dachs eine hohe Wärmerückgewinnung. Die Raumaufteilung kann individuell angepasst werden.

3D-Skizze Bungalow

Details

Wohnnutzfläche: 101 m²


Mögliche Dachformen: Pultdach, Flachdach, Walmdach


Ausbaustufen: Belags-/schlüsselfertig


Raumaufteilung kann individuell angepasst werden.

Dieses Massivhaus erreicht vor allem durch besonders gute Isolation der Wände, Fenster und des Dachs eine überdurchschnittliche Wärmerückgewinnung.

Es wird aus massiven Brettsperrholzelementen gebaut, was nicht nur die Umwelt schont, sondern auch kostenfreundlich ist.

Mehr zu unserer Bauweise

Interessiert?

Dann zögern Sie nicht, uns zu kontaktieren. Wir laden Sie gerne zu einem persönlichen Beratungsgespräch ein.