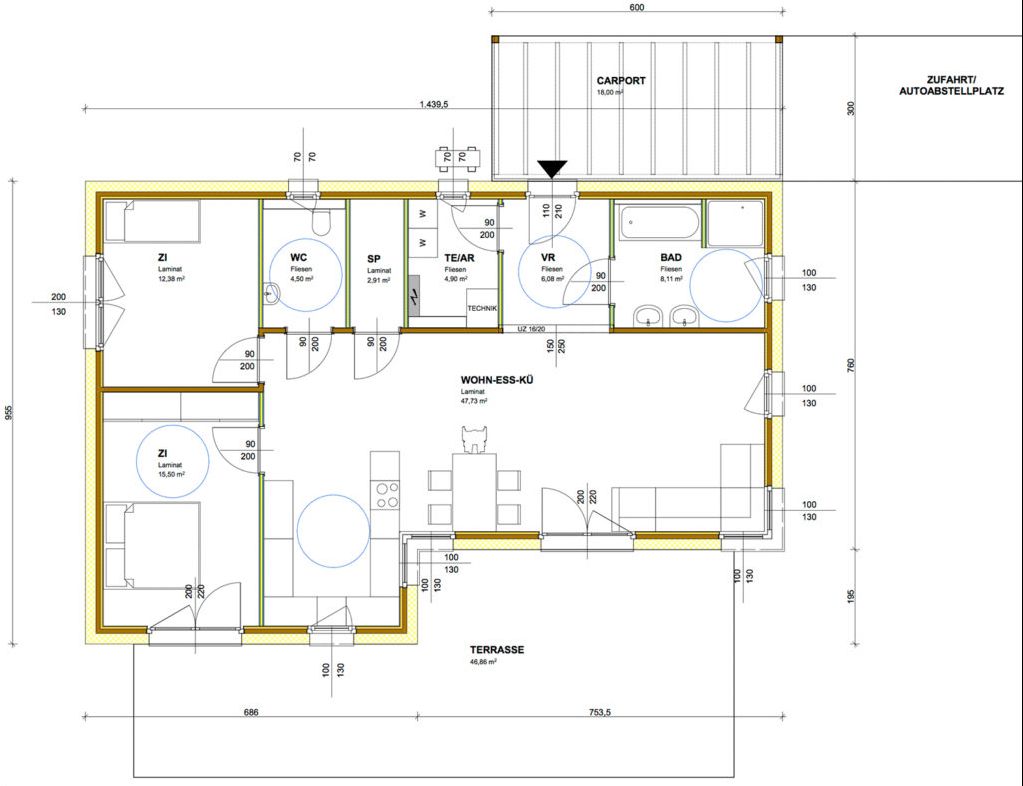
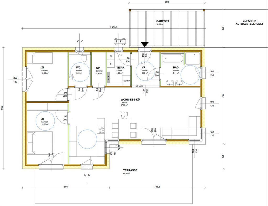
Haus Typ Bungalow 102

Von MFH  Massiv Fertighaus in Niederösterreich

Die perfekte Lösung für Jung und Alt – unser barrierefreier Bungalow 102. Mit einer Wohnnutzfläche von 102 m² bietet er viel Raum zum Erholen und Entspannen. Die Aufteilung erfolgt nach Ihrem individuellen Bedarf.

3D-Skizze

Details

Wohnnutzfläche: 102 m²


Mögliche Dachformen: Pultdach, Flachdach, Walmdach


Ausbaustufen: Belags-/schlüsselfertig


Raumaufteilung kann individuell angepasst werden.

Dieses Massivhaus erreicht vor allem durch besonders gute Isolation der Wände, Fenster und des Dachs eine überdurchschnittliche Wärmerückgewinnung.

Es wird aus massiven Brettsperrholzelementen gebaut, was nicht nur die Umwelt schont, sondern auch kostenfreundlich ist.

Mehr zu unserer Bauweise

Interessiert?

Dann zögern Sie nicht, uns zu kontaktieren. Wir laden Sie gerne zu einem persönlichen Beratungsgespräch ein.