Haus Typ 130

Von MFH Massiv Fertighaus in Niederösterreich

Das Massiv-Fertighaus Typ 130 eignet sich bestens für Familien oder Pärchen. Seine Niedrigenergie-Bauweise macht es zu einer sinnvollen, nachhaltigen Investition. Da bleiben keine Wünsche offen.

Einfamilienhaus

Details

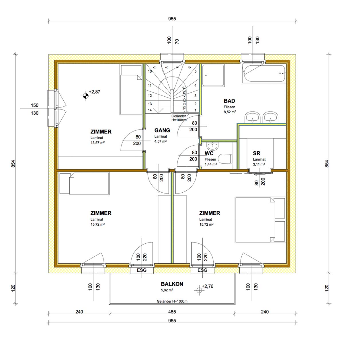
Wohnnutzfläche: 130 m²


Mögliche Dachformen: Pultdach, Flachdach, Walmdach


Ausbaustufen: Belags-/schlüsselfertig


Raumaufteilung kann individuell angepasst werden.

Dieses Massivhaus erreicht vor allem durch besonders gute Isolation der Wände, Fenster und des Dachs eine überdurchschnittliche Wärmerückgewinnung.

Es wird aus massiven Brettsperrholzelementen gebaut, was nicht nur die Umwelt schont, sondern auch kostenfreundlich ist.

Mehr zu unserer Bauweise

Interessiert?

Dann zögern Sie nicht, uns zu kontaktieren. Wir laden Sie gerne zu einem persönlichen Beratungsgespräch ein.